RYOSHITSU CHINTAI

お部屋探し・リノベーションの施工は良室賃貸へお任せください!

パーソンズ:304号室

リノベーション事例集 イメージ写真

RENOVATION

リノベーション事例集 Vol.34

1Kの価値を再構築。快適性とデザイン性で、選ばれる部屋へ。

生活空間と寝室空間を分けるゾーニング設計により、1Kながら1LDK同等の住み心地を実現。

格子状の壁面を採用することで、空気の流れを遮らずに空調を共有し、視覚的な解放感と快適な居住環境を両立する設計としています。

水回りは3点ユニットバスをセパレート化、システムキッチン新設で、上質で清潔感のあるお部屋へと一新。

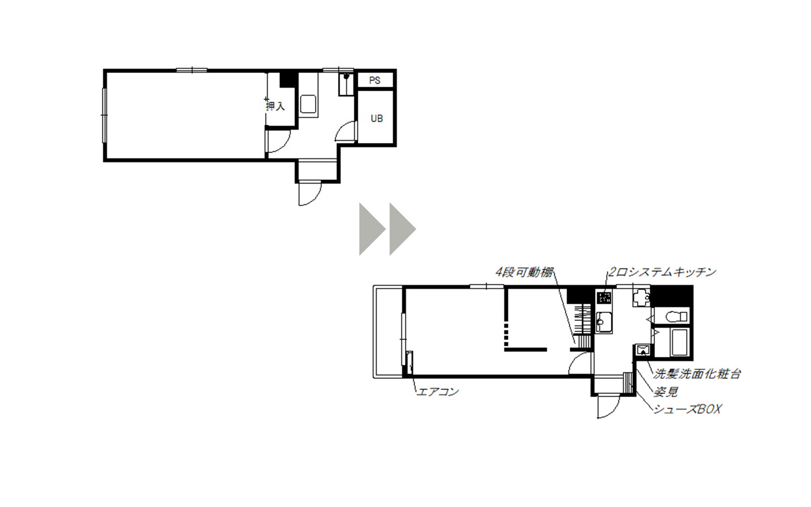
間取り図
1K空間を、1LDKのように機能的に使えるレイアウトへ変更。
洋室
明るい木目調の床に白い壁紙にアクセントとなるドット柄を併せた清潔感のある洋室。
格子壁
見た目のデザイン性と空調を寝室へ届けるための機能性を兼ね備えた格子壁。廊下にはダウンライトを採用し、ホテルライクな上質な印象に仕上げました。
寝室
オープンのクローゼットに可動棚がついた寝室兼大型収納。建具をあえて設けないことで、解放感とコスト削減を実現しました。
キッチン
建具に合わせたダークブラウンの扉の2口ビルトインコンロのシステムキッチン。1Kでは希少な幅1500サイズをチョイス。
洗面化粧台
洗面台はミラー収納とシャワーハンドで機能性も充実。
バスルーム
無駄をそぎ落としたデザインで、機能性と清潔感を兼ね備えた現代的バスルーム。
トイレ
シンプルなトイレ。ダークカラーの壁面を採用し、落ち着いた印象に仕上げました。
ホスクリーン
室内干しを快適にするスマート設計。不要な際は簡単に取り外し可能。
シューズ棚
靴のサイズや高さに合わせて調整可能な可動棚で、収納量を最大限に確保。
洗濯機置場
ワンタッチ水栓で、ホースの抜けによる漏水事故を防止します。
TVインターホン
外出中でも録画映像で訪問者を確認。勧誘などの対応も映像で判断できて便利です。
リビング
改装前のリビング。
キッチン
改装前のキッチン。
3点ユニットバス
改装前の3点ユニットバス。
シューズ棚
改装前のシューズ棚。
収納
改装前の収納。
Floor Plan
間取り図
After
洋室
After
格子壁
After
寝室
After
キッチン
After
洗面化粧台
After
バスルーム
After
トイレ
After
ホスクリーン
After
シューズ棚
After
洗濯機置場
After
TVインターホン
Before
リビング
Before
キッチン
Before
3点ユニットバス
Before
シューズ棚
Before
収納
物件概要
物件番号 No.Reno034
所在地 名古屋市熱田区
交 通 地下鉄名城線「西高蔵駅」
間取り 1K(304号室)
賃 料 SOLD OUT
構造・築年数 RC造5階建(昭和57年完成)築43年(2025年現在)
設備仕様 2口システムキッチン・ウッドデッキ・ガラス入りモールディングドア・ワンタッチ洗濯水洗・TVモニター付インターホン・姿見鏡・飾り棚・スポットライト・アクセントクロス

物件に関するお問い合わせは052-842-3939(10:00〜18:30 御器所本店)

↑PAGE TOP